• Questions? 703.549.1449

1609 SHENANDOAH ROAD
IN THE HOLLIN HALL NEIGHBORHOOD OF ALEXANDRIA, VIRGINIA 22308


PRE-COMPLETION INFORMATION

MAIN HOUSE
  • 5 Bedrooms
  • 4 Full Bathrooms / 1 Half Bathroom
  • Laundry Room, and Mudroom
  • Butler's Pantry
  • Covered front and back porches
  • Backyard deck, fenced yard
Attached Garage w/Optional Studio Apartment Above:
  • 2-Car Garage
  • 1 Bedroom/Rec Room
  • 1 Full Bathroom (option)
  • Laundry (option)
  • Galley kitchen (option)
Whole Project (w/Garage Apartment):
  • Total Conditioned Living Space: 4,219 sq. ft
  • Lot Size: 9,874 sq. ft

1609 SHENANDOAH ROAD
ALEXANDRIA, VIRGINIA 22308

Contact us: info@1609Shenandoah.com

Completely renovated and expanded 2-level brick and frame farmhouse style home on .23 acre lot. Located on Shenandoah Road in Hollin Hall Village within walking distance of Hollin Hall shops including grocery, hardware, convenience, pharmacy, coffee and restaurants.

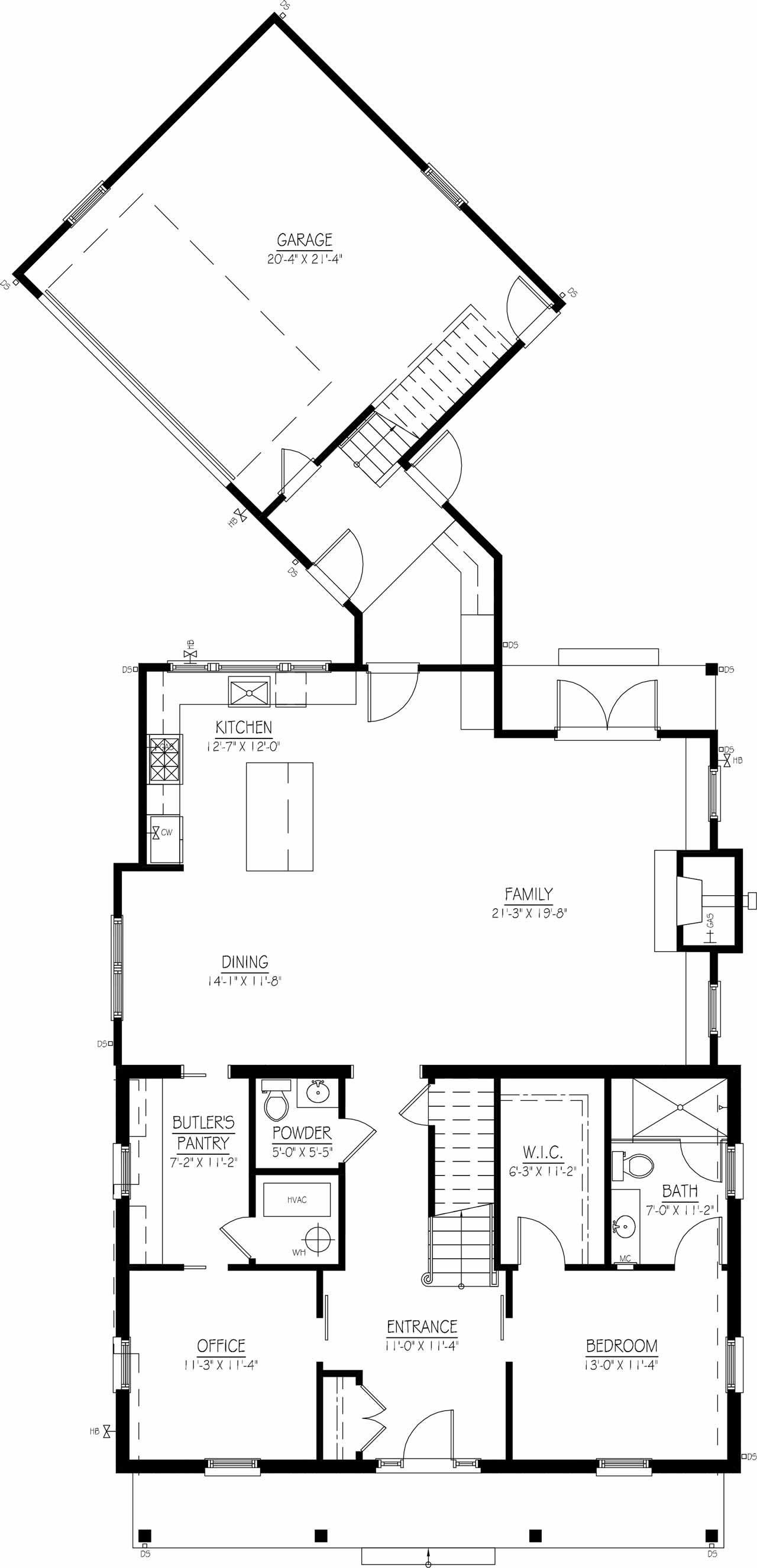
FIRST FLOOR (1,880 sq. ft.): Open floor plan, hardwood flooring. Gourmet kitchen with island and butler’s pantry; dining room; mudroom with built-ins and access to the backyard; powder room; family room with gas fireplace and built-ins; master bedroom with en suite full bathroom and walk-in closet; home office.

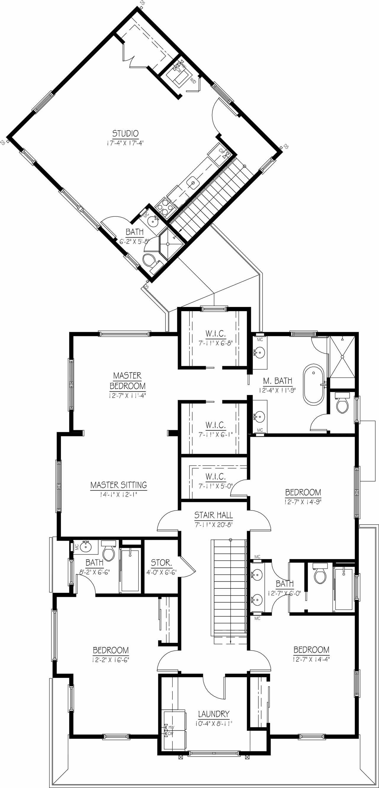
SECOND FLOOR (1,788 sq. ft.): Private master suite with sitting room, two walk-in closets and luxury en suite bathroom including a large shower with glass doors, two vanities and a free-standing soaking tub; 3 additional bedrooms - one with en suite bath and two with shared bathroom and large closets.

GARAGE (551 sq. ft.): Attached two-car garage with access to mudroom and yard.

STUDIO OVER GARAGE (551 sq. ft): Recreation room or optional studio apartment. Studio apartment to include bedroom, kitchen, full bath, laundry.

EXTERIOR: Large covered front porch, covered back porch off family room with deck; fenced in yard with access to garage and mudroom; additional off-street parking in driveway.

Energy Efficient Home designed by Crafted Architecture and constructed by WFB Companies, Inc:

  • 3-System Heating/Air Conditioning
  • All New Plumbing, Electrical, Windows and Doors
  • All New Stainless Steel Appliances
  • Custom Built-ins and Other Upgrades available

Brokers welcome - cooperating broker fee TBD

Note: Actual dimensions, quantities, colors used may be slightly different than stated/depicted.